Une cure de jouvence pour un Haussmannien
On ne vous présente plus les majestueux appartements haussmanniens qui peuplent la plupart des rues de Paris. Si leur façade vous fait rêver (à juste titre), vous seriez peut-être surpris de découvrir ce qui se cache parfois derrière ces façades monumentales…
Arnold — architecte d’intérieur va s’atteler à la rénovation d’un sublime appartement de ce genre, qui aurait bien besoin d’une ou deux gouttes d’élixir de jouvence.
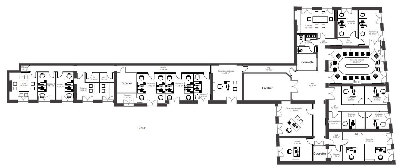
Établie rue de Penthièvre dans le 8e arrondissement, Soccamet, l’unique société de caution mutuelle dédiée aux agences d’emploi, entame un tournant majeur de son histoire. Se sentant plus que jamais investi des valeurs mutualistes, il est progressivement apparu évident que leur énergie ne transparaissait plus assez de leurs locaux.
En cause, la dernière rénovation effectuée il y a quinze ans de cela avait rendu les bureaux très techniques, en omettant un point capital : le confort de ceux qui l’occupaient.
Notre travail consistera à tout repenser sous cet angle, et plus particulièrement la salle de conseil d’administration, le point d’orgue de cet aménagement, réunissant tous les mois ses quinze représentants.
Le sur-mesure est donc de mise, avec notamment la construction de deux tables monumentales, des tons japonisants comme le crème et le gris, ainsi qu’une appréciable touche minimaliste.
CONTACTEZ NOUS ET DONNEZ VIE À VOTRE PROJET
Notre dossier aménagement de bureau
Notre dossier sur le bureau haussmannien
Réalisations de bureaux haussmanniens
Bureaux haussmanniens haut de gamme